St-Émile / Lac St-Charles
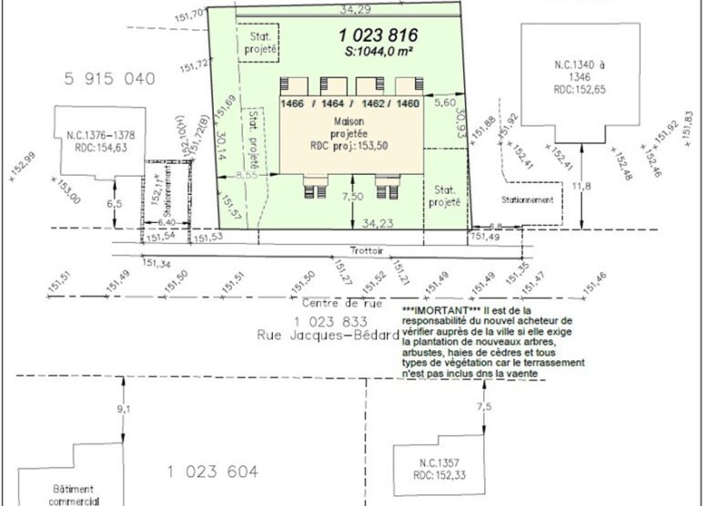
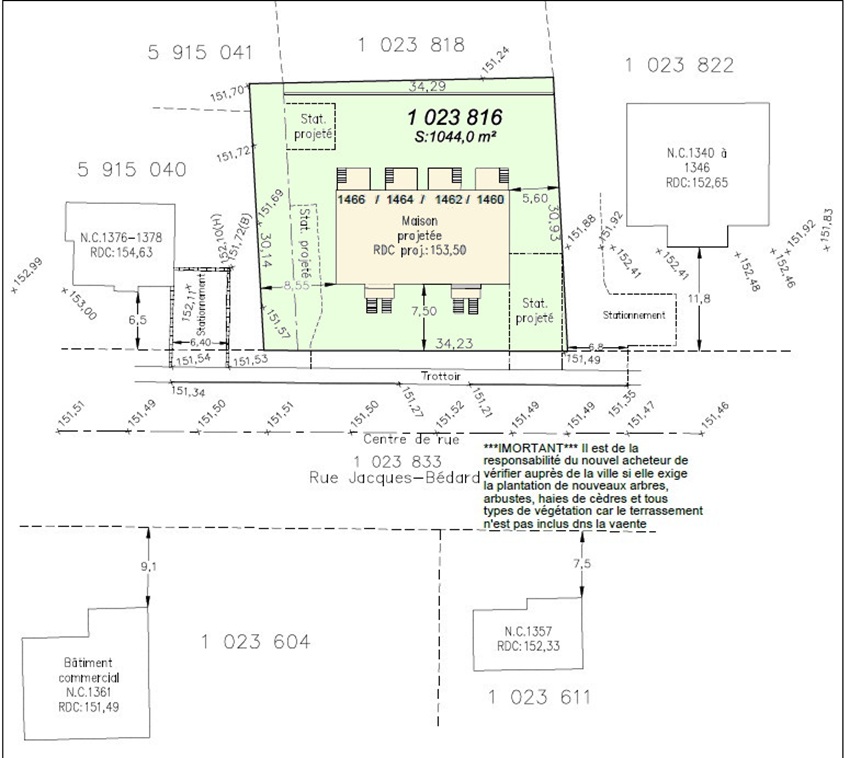
JACQUES BÉDARD
Nombre d'unités
4
Représentant :
Gabriel Roberge / Courtier Agréé
418-520-2220
Pour plus d'informations :
[email protected]
